RAVINTOLA HAUKILAHDESSA
Uniikki tilaisuus ravintolayrittäjälle Espoon suosituimmassa satamassa!
Tarjoamme vuokralle tasokkaalle yrittäjälle kerhomme omistaman ravintotilan ympärivuotiseen palveluun. Tila vapautuu käyttöön v. 2021 keväällä. Sopimus pyritään tekemään tämän vuoden loppuun mennessä.
Ravintolamme viihtyisä miljöö tarjoaa puitteet lounaalle, illalliselle, kahvihetkiin, drinkeille, päiväjätskeille, sekä unohtumattomiin hetkiin olipa kyseessä vappu, pikkujoulu, rapu-, merkki-, kokous- tai yritysjuhla. Miksipä ei brunchille tai fonduelle? Laajalla ravintolaa ympäröivällä terassilla asiakkaat saavat nauttia auringosta myöhäiseen iltaan asti ja se jos mikä houkuttelee asiakkaita kauempaakin nauttimaan sataman upeasta tunnelmasta.
Meistä
EMK, Espoon Merenkävijät ry, on perustettu 1963 ja olemme Suomen kuudenneksi suurin pursiseura. Meillä on jäseniä yli 800. Satamamme sijaitsee Espoon Haukilahdessa. EMK on vakiinnuttanut asemansa seuralaisten ja lähialueen asukkaiden kohtaamispaikkana sekä purjehduskilpailujen järjestäjänä. Sataman puitteiden luomisessa toimimme yhteistyössä maanomistajan eli kaupungin kanssa. Viime kesänä uusittu satama-alueemme puu- ja kukkaisistutuksineen on muodostunut miltei nähtävyydeksi. Hoidamme rakennustemme ja satama-alueen ympäristöä kunnia-asianamme.
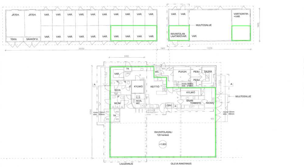
Ravintolatilat
| Asiakaspaikat | |
| Sisällä | ~120 |
| Terassilla | ~200 |
Avaa
PohjakarttaAvaa
Pohja 2Avaa
Pohja 3Avaa
Pohja 4Aktiivista elämänmenoa
Haukilahden satama on paikkana ainutlaatuinen, jossa asiakkaat pääsevät nauttimaan merimaisemasta ja sataman tunnelmasta. Espoon rantaraitti ja uimarannat houkuttelevat asiakkaita nauttimaan läpi vuoden ulkoilusta, kesäpäivästä, viikonlopun kävelylenkistä tai lounaasta merellisessä miljöössä. EMK on osa Espoon merenrannan rantaviivaa määrittävää ainutlaatuista virkistys- ja ulkoilureittiä Rantaraittia.
Asiakaspotentiaalia
Tällä hetkellä ravintolakävijöitä tulee eniten lähialueella asuvista ja työssäkäyvistä. Alueella Haukilahti, Iirislahti, Nuottaniemi, Nokkala, Niittykumpu, Westend asuu paljon ylempiä ja johtavassa asemassa olevia toimihenkilöitä, suurituloisia, lapsiperheitä sekä eläkeläisiä.
Lähialueen asukkaiden tulotasot
| Talouden Bruttotulot/Vuosi € | 50 000 - 85 000 | 85 000 - 100 000+ | Lapsiperhe |
| Kohderyhmän Koko* | 40 000 | 50 000 | 76 000 |
*Lähde TNS Atlas, tammi-kesä 2018
Koko ajan kehittyvä Keilaniemi ja Olarinluoma kasvattavat lounasasiakkaiden potentiaalia. Ilmainen ja laaja parkkialue sekä hyvät yhteydet mahdollistavat sujuvan asioinnin. Nykyistä laajempaa asiakasjoukkoa on näissä puitteissa mahdollista palvella entistäkin paremmin.
Keskeinen sijainti
Yhteydet ja sijainti ovat mitä parhaimmat veneellä, autolla, fillarilla, kävellen tai julkisilla liikuttaessa.
Sujuvaa pysäköintiä
Omalla autolla ravintolaan saapuville asiakkaille on tarjolla runsaasti parkkitilaa.
Veneellä saapuville asiakkaille on varattu runsaasti paikkoja ravintolan edustalle.
Yhteystiedot
Haluatko kuulla lisää tai tulla kenties paikan päälle tutustumaan? Lähetä meille viesti, niin olemme sinuun yhteydessä.
Tarjouspyyntöasiakirjat ja tiedustelut:
Sähköposti: ravintola (a) emk.fi





















